






















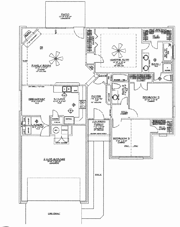
Room dimensions:
Kitchen 9 x 10'10
Pantry 5'4 x 4'9
Breakfast area 9 x 8'6
Living room 17 x 19'1
Entryway 12 x 5'6
Master bedroom 13'10 x 13'5
Master bathroom 9 x 12'3
MBR closet1 3'9 x 8'11
MBR closet2 2'4 x 7
2nd bedroom 11'2 x 11'6
Closet 6'3 x 4'3
2nd bathroom 9'1 x 4'10
3rd bedroom 12'10 x 10'6
Garage 19 x 19'5
Back yard 73' x 99' (42+31 x 26'6+47+25'6)
Back to previous page